合肥装饰公司>合肥装修公司>办公室装修>厂房装修>展厅装修>办公楼设计装修 > 精品案例 > 办公楼/办公室装修 > 办公楼装修 > 合肥办公楼装修设计公司案例|华新智能停车5000㎡现代简约风格改造
项目名称:华新智能停车
项目类型:办公楼内部装修设计 合肥办公楼装修设计公司
项目面积:5000㎡
项目地址:合肥.肥东
项目概述:
本项目为5000平方办公楼翻新改造装修项目,原办公楼老旧,不能满足现有办公要求;现办公楼采用现代简约风格,设计师去除繁琐的装饰,追求形式与功能的完美结合,以简洁的线条、纯净的色彩和实用的布局,营造出舒适、时尚且具有现代感的空间氛围。

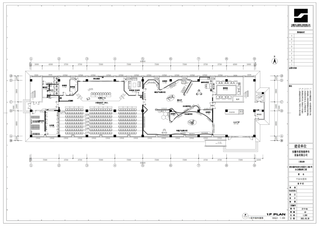
一层平面图
一层设为企业展厅、大型会议室。

大厅装修效果图
地面使用800*800mm新款灰色地砖,这是最近几年比较流行的地砖和颜色。墙砖使用300*600mm米黄色墙砖。顶面使用石膏板满吊顶加合理的射灯和线条灯组合。

端景效果图
在大厅入口后2/3处使用钢架建立起一个屏风,前后面使用120*240的岩板包面,正面中间安装一个LED显示屏,展示企业的活动和公告。侧边使用300*600mm的墙砖包边。在屏风右边留有一个洞口使用不锈钢包边,放置关公雕像。

电梯厅
顶面采用双层石膏板吊顶,磁吸轨道灯点缀。
墙面粘贴600*300mm全瓷砖。
地面采用800*800mm仿石材瓷砖满铺,地面采用贵族银美缝剂,不同于普通的银色,其细腻的闪粉使得填充后的缝隙银光熠熠,与灰色地砖相映成趣,不仅提升了整体的美感,更赋予了空间一种高贵的气质。
美缝剂作为瓷砖填缝的升级产品,其核心作用是美观和防污。

大型会议室
过道采用双层石膏板吊顶,座位区采用铝板吊顶,内部明装筒灯,地面使用800*800mm地砖。

四层平面布置图
四层设有企业接待室、会议室、员工办公区及经理办公室、主管办公室。

贵宾接待室效果图
地面使用地毯,墙面采用米色墙布,顶面石膏板吊顶,内嵌金属线条。两侧使用商务沙发,整个空间柔软不失严肃。

经理办公室效果图
双层石膏板吊顶,灯光软膜点缀,周边采用玫瑰金线条走边,地面深蓝色块毯。

公共办公区效果图

会议室效果图
双层石膏板吊顶,内嵌磁吸轨道灯,周边筒灯点缀;墙面木饰面装饰;地面运用深蓝色块毯。
安徽半山装饰工程有限公司是一家从事多年的室内设计装饰装修企业,具有总包叁级、装饰装修专项施工乙级以及工程设计专项资质,主要致力于办公室装修、写字楼装修、厂房装修、展厅装修、售楼部装修、样板间装修、民宿装修、店面店铺装修、学校装修、及其它商业空间装修设计施工一体化服务。
咨询电话:18919604649
合肥装修公司 合肥工装公司
下一篇:暂无